Projet Maison Individuelle Méry

Projet Maison Individuelle Méry

Type de client

Particulier

Localisation

Méry-sur-Oise

Superficie

110 m2

Livraison

2024

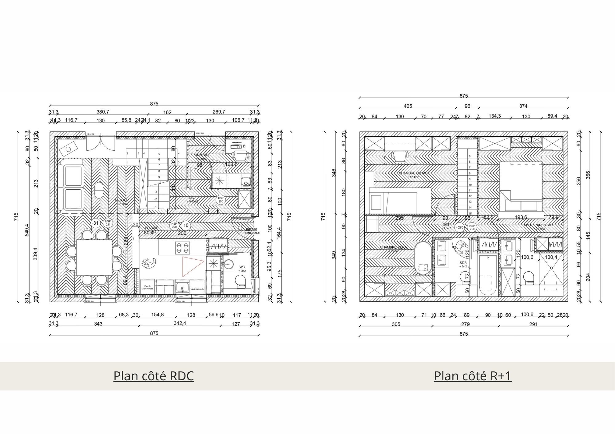
Le projet

Dans le cadre d'un projet d'études, la rénovation de cette maison individuelle de 110m2 répartis sur 2 niveaux mêle avec subtilité l'élégance haussmanienne au charme méditerranéen.

Chaque espace, délimité grâce à un tracé régulateur en forme de chocolat, a été pensé pour offrir un équilibre entre caractère, douceur et fonctionnalité. Matériaux naturels, arches, moulures, parquet en point de hongrie, détails classiques et teintes apaisantes structurent les espaces, du séjour lumineux à la suite parentale, en passant par la cuisine semi-ouverte et surélevée sur le séjour, les chambres évolutives pour les enfants et un bureau lumineux.

Photos du projet

Envie de transformer vos espaces ?

Contactez nous
Nom *
Email *
Message *

Filtres

Type de client
Type de chantier